Zum Inhalt springen
Home
Immobilien
Hausbau
Individueller Hausbau
Das Haberl-Haus
Leistungen
Hochbau
Verputzen
Generalunternehmer & Totalunternehmer
Sanierung & Umbau
Projektentwicklung
Referenzen
Unternehmen
Der H-Effekt
Ansprechpartner
News
Partner
Bauland
Karriere
Lehre
Kontakt
EFH M120
Beratungstermin vereinbaren
Grundrisse
Details
Wohnfläche
Wohnfläche EG
55 m
2
Wohnfläche OG
65 m
2
Gesamt
120 m
2
Nutzfläche
Carport
18 m
2
Terrasse
18 m
2
Geräteraum
10 m
2
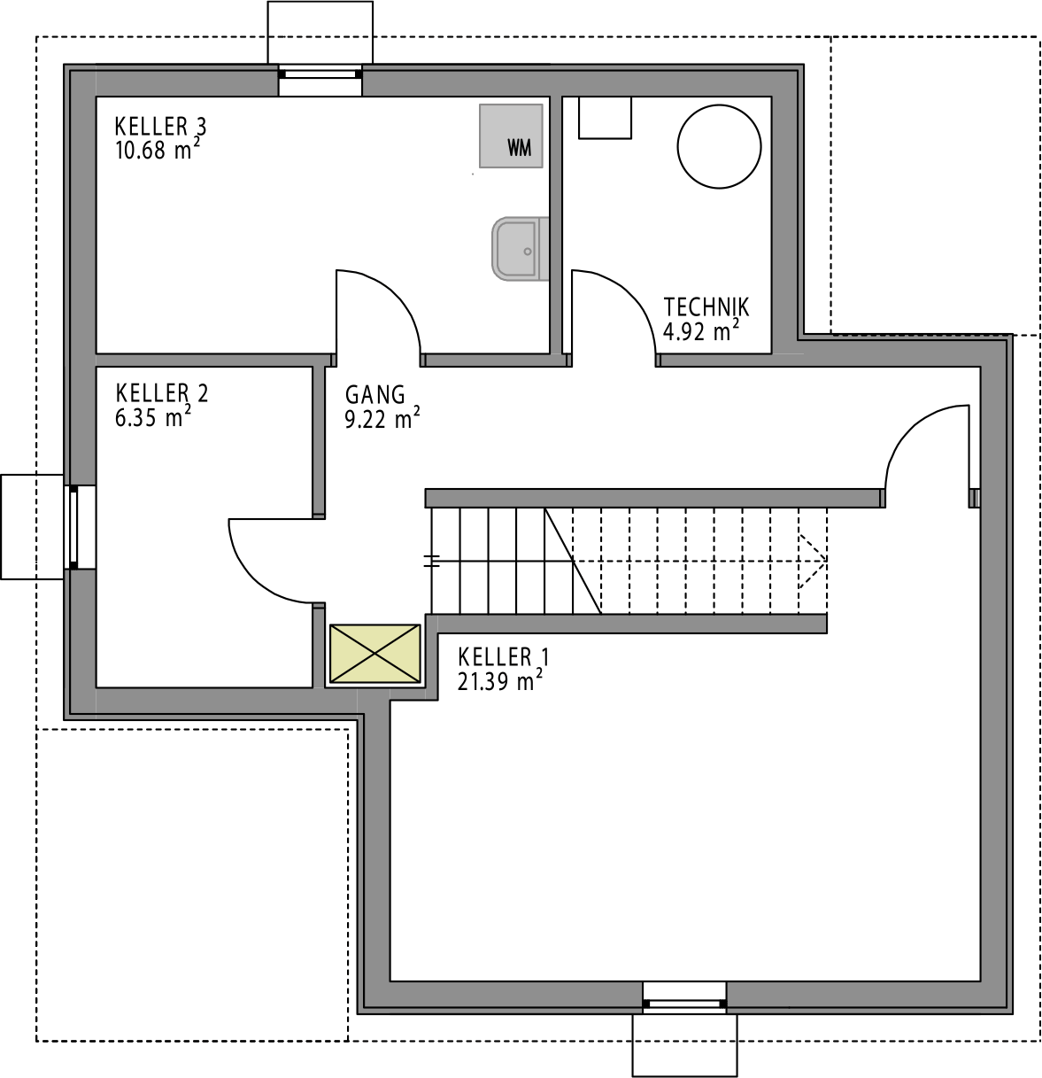
Keller
(optional) 53 m
2
Einstiegspreis
Preis auf Anfrage
Grundrisse
Download
Nach oben scrollen
Home
Immobilien
Hausbau
Individueller Hausbau
Das Haberl-Haus
Leistungen
Hochbau
Verputzen
Generalunternehmer & Totalunternehmer
Sanierung & Umbau
Projektentwicklung
Referenzen
Unternehmen
Der H-Effekt
Ansprechpartner
News
Partner
Bauland
Karriere
Lehre
Kontakt