Zum Inhalt springen
Home
Immobilien
Hausbau
Individueller Hausbau
Das Haberl-Haus
Leistungen
Hochbau
Verputzen
Generalunternehmer & Totalunternehmer
Sanierung & Umbau
Projektentwicklung
Referenzen
Unternehmen
Der H-Effekt
Ansprechpartner
News
Partner
Bauland
Karriere
Lehre
Kontakt
EFH M100
Beratungstermin vereinbaren
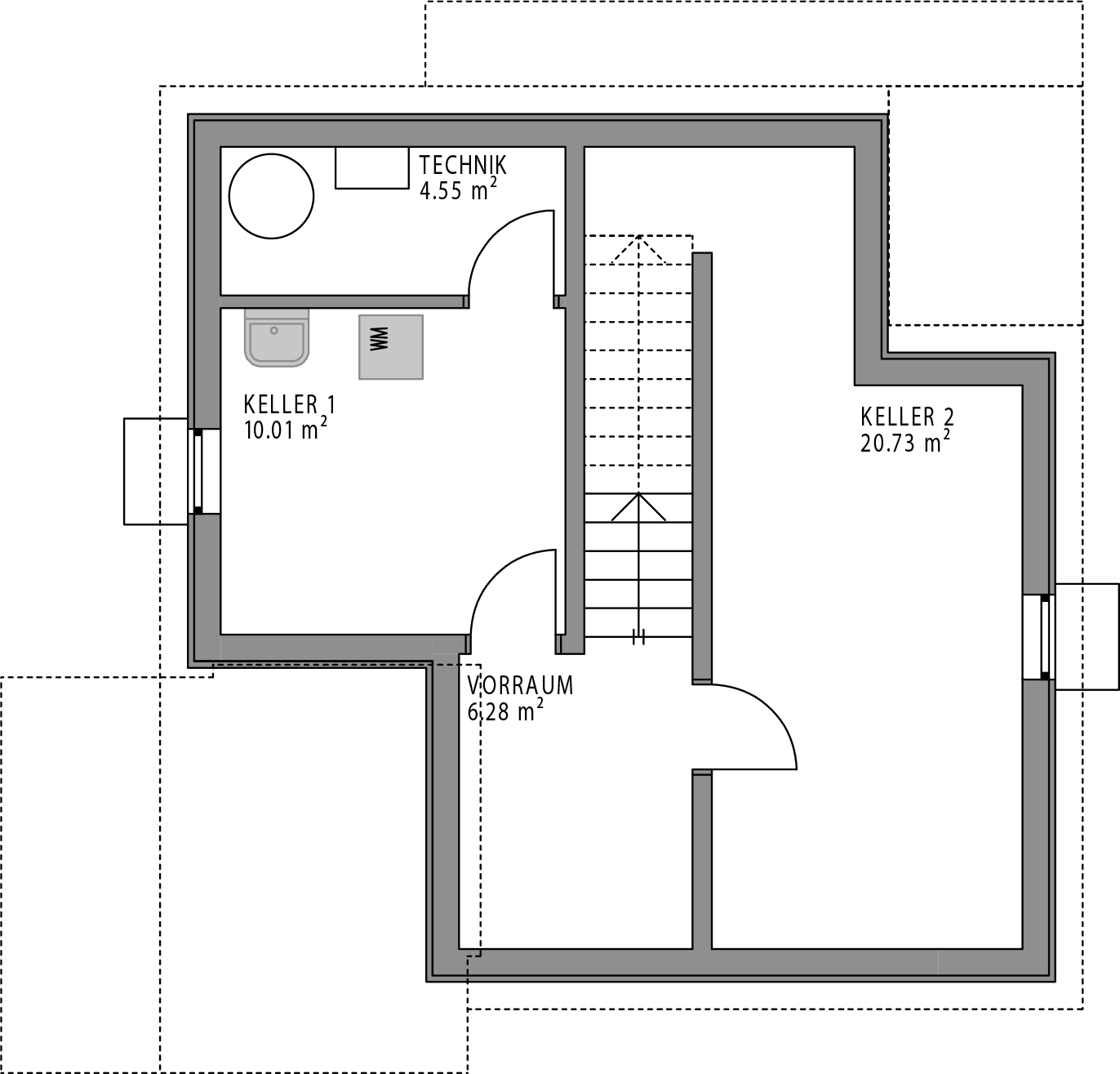
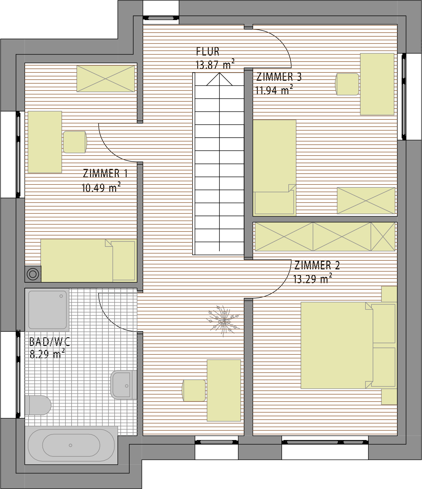
Grundrisse
Details
Wohnfläche
Wohnfläche EG
42 m
2
Wohnfläche OG
58 m
2
Gesamt
100 m
2
Nutzfläche
Carport
17 m
2
Terrasse
17 m
2
Geräteraum
10 m
2
Keller
42 m
2
Einstiegspreis
Preis auf Anfrage
Grundrisse
Download
Nach oben scrollen
Home
Immobilien
Hausbau
Individueller Hausbau
Das Haberl-Haus
Leistungen
Hochbau
Verputzen
Generalunternehmer & Totalunternehmer
Sanierung & Umbau
Projektentwicklung
Referenzen
Unternehmen
Der H-Effekt
Ansprechpartner
News
Partner
Bauland
Karriere
Lehre
Kontakt